Hỏi :
Tôi sinh 06-04-1974(dương lịch)có mảnh đất mặt tiền 3,85m dài 11,2m hướng Đông bắc(bắc nhiều hơn). Xin được tư vấn thiết kế nhà. Tôi xin cảm ơn!
Trả lời:
Chúng tôi rất vui vì nhận được thư anh Luận gửi qua hệ thống website của công ty kiến trúc P.Archi. Qua các cuộc trao đổi bằng mail, chúng tôi đã xác định được thêm nhu cầu sử dụng của anh trong ngôi nhà tương lai. Chúng tôi xin đưa ra phương án thiết kế mặt bằng nội thất như sau:
Ở tầng 1 chúng tôi bố trí một khoảng để xe cũng có thể coi như một sảnh nghỉ trước khi bước vào phòng khách.Sau lưng nhà là ngõ nên chúng tôi bố trí một cửa phụ ở phía sau,mở vào phòng bếp sẽ thuận tiện hơn cho những lúc đi chợ hoặc những khi có khách,không muốn sử dụng lối qua phòng khách.Phòng khách rộng rãi,tiện nghi,chỉ ngăn lửng với khoảng để xe để tạo sự thông thoáng.Wc chúng tôi bố trí nằm kín đáo dưới gầm cầu thang bên cạnh khu vực bếp
Tôi sinh 06-04-1974(dương lịch)có mảnh đất mặt tiền 3,85m dài 11,2m hướng Đông bắc(bắc nhiều hơn). Xin được tư vấn thiết kế nhà. Tôi xin cảm ơn!
Trả lời:
Chúng tôi rất vui vì nhận được thư anh Luận gửi qua hệ thống website của công ty kiến trúc P.Archi. Qua các cuộc trao đổi bằng mail, chúng tôi đã xác định được thêm nhu cầu sử dụng của anh trong ngôi nhà tương lai. Chúng tôi xin đưa ra phương án thiết kế mặt bằng nội thất như sau:
Ở tầng 1 chúng tôi bố trí một khoảng để xe cũng có thể coi như một sảnh nghỉ trước khi bước vào phòng khách.Sau lưng nhà là ngõ nên chúng tôi bố trí một cửa phụ ở phía sau,mở vào phòng bếp sẽ thuận tiện hơn cho những lúc đi chợ hoặc những khi có khách,không muốn sử dụng lối qua phòng khách.Phòng khách rộng rãi,tiện nghi,chỉ ngăn lửng với khoảng để xe để tạo sự thông thoáng.Wc chúng tôi bố trí nằm kín đáo dưới gầm cầu thang bên cạnh khu vực bếp
Phương án tư vấn mặt bằng nội thất nhà ở lô phố diện tích 3,85 x 11,2m - Mặt bằng tầng 1
Phương án tư vấn mặt bằng nội thất nhà ở lô phố diện tích 3,85 x 11,2m - Mặt bằng tầng 2
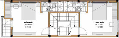
Tầng 3 có thể bố trí 2 phòng ngủ với 1 phòng ngủ lớn giống tầng 2,1 phòng ngủ nhỏ và 1 wc chung.Cả 2 phòng ngủ đều rất rộng rãi
Phương án tư vấn mặt bằng nội thất nhà ở lô phố diện tích 3,85 x 11,2m - Mặt bằng tầng 3
Trên tầng 4 là nơi đặt phòng thờ,với cách sắp xếp mặt bằng như thế này,phòng thờ sẽ không nằm trên hay cạnh wc,phòng giặt cạnh cửa ra sân phơi tiện lợi cho việc sử dụng
Phương án tư vấn mặt bằng nội thất nhà ở lô phố diện tích 3,85 x 11,2m - Mặt bằng tầng tum
















